
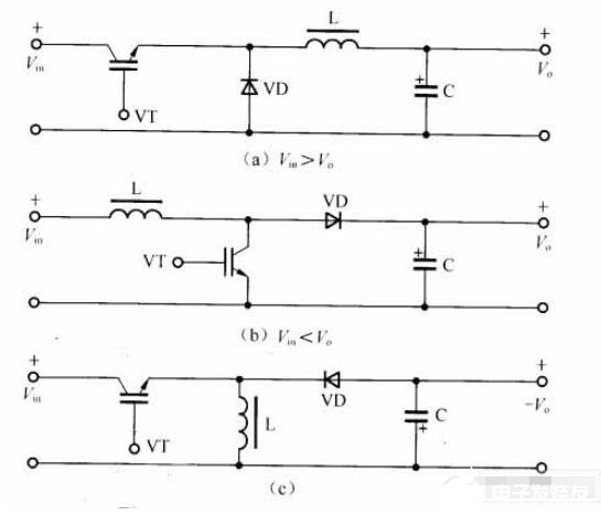
对于输入与输出电压不需隔离而只用一个工作开关和L、D、C组成的变换器电路,其最基本的形式有如下3种:降压式变换器(BuckConverter)、升压式变换器(BoostConverter)和降/升压:式变换器(Buck-BoostConverter)。其电路原理如图所示。

1、降压式变换器
如图(a)所示9为降低输出纹波,在输出端接入电感L和电容C。图中的VD为续流二极管。降压式变换器输出电压的平均值Vo总是小于输入电压Vin。电感中的电流iL是否连续,取决于开关频率、滤波电感L和电容C的参数值。
当电路的工作频率较高时,若电感的电感值和电容的电容量足够大,且为理想元件,则电路进入稳态后9可以认为输出电压为常数。当晶体管VT导通时,电感中的电流呈线性上升;当晶体管VT截止时,电感上中的电流不能突变,其上的感应电动势使二极管导通。在稳态时,困为电感滤波保持了直流分量,消除了谐波分量,所以输出电流平均值为Io=Vo/RL;,其中RL为负载电阻的阻值。
2、升压式变换器
图(b)所示为升压式变换器,它由功率晶体管VT、储能电感L、二极管VD及滤波电容C组成。当晶体管VT导通时,电源向电感储能,电感电流增大,感应电动势的极性为左正右负,负载曲电容C供电。当VT止时,电感电流减小,感应电动势的极性为左负右正,电感释放能量,与输入电压一起经二极管VD向负载供电,同时向电容C充电。这样把低压直流电变换成高压直流电。
3、降/升压式变换器
图(c)所示为降/升压式变换器,其输出电压的平均值Vo大于或小于输入电压Vin,它们的极性相反。
欢迎分享,转载请注明来源:内存溢出
微信扫一扫
支付宝扫一扫
评论列表(0条)