
设计数据的管理一直是非常重要的。特别是对于大型项目,拥有一个设计团队的情况下。其中一个工程师在什么时候做了哪些设计更改,另一个工程师又在什么时候做了哪些更改,这些设计数据的更新如果没有有效的措施进行管理或者追溯,那整个设计团队以及所设计的项目必将是一锅乱粥。而在设计完成之后,要将设计传递给产品制造,装配等等后续环节,同样需要清晰有条理地进行设计数据输出。另外工程师的设计意图,制造装配要求等等信息也需要很好地与制造装配负责人进行沟通。最终的设计图纸,项目成果,文档同样需要分门别类进行归档保存。以便将来查验或复用。
那么在AlTIum Designer中都有哪些功能模块对应以上这些设计数据管理及输出方面的需求呢?SVN版本控制实时进行设计版本的控制和追溯。Output job输出作业非常清晰明了地进行各种数据类型的设计输出。Draftsman智能出图系统极其便捷地进行设计意图的展现和沟通,以及设计数据的归档和保存。
SVN版本控制
设计文件的版本控制在大型设计多人协作的场合是极其重要而必不可少的。因为多人在同一个项目上工作,长达几个月的设计时间里,很有可能张三在这张原理图上更改了某器件,而李四并不知道;或者李四在这个PCB中删除了一个接头,而王老五没听说过......
更有甚者,就算整个项目都是自己一人所为。刚开始设计出来最初的成果记为A版,然后觉得有个地方需要改进,赶紧改改,记为B版。再然后板形可以再别致一点,画呀画呀,这个满意出来C版。然后的然后,出来若干版,自己也记不清该是什么版本了,标为Final版。后来发现还有个器件的封装想换一个,出来Fianal01版.....
最初的成果,记为A版
改了一个小地方,记为B版
改了板形,记为C版
改了%*@#¥^&,记为.....
终于这个不太会再改了,记为Final版!
不对,有个器件封装要换一下,出来Final01版
完了,这个接头需要挪一挪,就FinalReally版
…...
最后,令人崩溃的事情发生了!这是我听说过的一个真实案例。小李(化名)将最终的设计文件发给板厂去加工。这个板厂是他们公司经过多次调研考察比较选出来的。原因是该板厂的交期稳定而且快,因为小李的这个项目进度比较赶,需要快点打板调试以及与机械部分进行联调。小李也很紧张,连夜加班,然后赶紧将最终的设计文件输出板厂所需的文件数据并打包,发给板厂进行加工。几天后,小李等人终于等到PCB加工样片,准备进行元件焊接并调试。结果一打开包裹傻眼了:该PCB板不是最终really really final版,而是之前的某版,接头器件不一样!以至于机械工程师之间的联调也泡汤了!!!
这些都是没有进行系统自动的版本控制造成的。AlTIum Designer提供了很多种版本控制之间的接口,可以对设计各个阶段的内容以及设计更改进行记录和管理,并能追溯设计文件的历史。使得设计数据和文件在系统中井井有条,清晰明了。再也不会出现拿错文件,忘记什么时候做了什么更改的情况了。
AlTIum Designer可接口的版本控制软件很多,这里介绍常用的SVN。
要使用SVN来进行版本控制,首先要下载SVN并安装到电脑上。

然后在系统设置的众多可以版本控制软件中选择SVN来进行设计文件的版本控制。

接着为项目创建用于版本控制的子版本存储库。

然后将设计项目与创建好的子版本存储库建立链接关系。并将子版本存储库里的文件添加到版本控制系统。

设置好版本控制系统之后。每次打开存储库中的设计项目,即可进行检出(Check Out),做相应的设计更改,保存并检入(Check In)。

这样所有的设计更改,什么时候做的更改都会清楚地显示在版本控制系统中。工程师还可以在Comment里面做一些备注说明,以备后续追溯。
Output Job设计数据输出
在设计完成之后,设计成果PCB需要发给下游加工制造环节进行PCB裸板加工。同时需要去按照BOM清单进行元器件和所有材料的采购。等PCB加工完成之后,裸板和元器件一起交给装配厂进行PCB产品组装。那么设计完成之后的设计数据需要分门别类按照板厂需要进行数据输出。
AlTIum Designer在设计数据输出方面提供的功能模块是Output Job,超级方便快捷,一目了然进行设计数据输出。如下图所示,Output Job 文件首先会给你选择装配变量(如果设计中用到的话)。左下框显示的是可以输出的齐全的各种类别。其中用到最多的为文档输出,制造输出,装配输出。当然还有一些比如网表输出,可用来输出各种格式的网表文件,仿真输出,报告输出,导出文件输出等等。每一类输出都有子菜单列表,包含了所有该类别所需的各种文件。
比如制造输出类别,点击有子菜单,包含PCB板加工制造所需的各种文件。比如Gerber文件,NC drill钻孔文件,测试点报告文件等。

而输出格式也有很多种可选。包括PDF格式,文件夹打包格式,视频格式,或直接打印作业。这个Output Job输出系统非常强大,包罗应有尽有的输出文件类别和丰富多样的输出格式。
就大家最常用的PCB制造输出为例,下面简单介绍制造加工板厂需要的哪几类文件。
那么PCB制造输出都需要那几样最基本的文件呢?
光绘文件(Gerber, 或ODB++)
NC Drill钻孔文件
以上这两种文件是必不可少的,缺任意一个都不能加工。光绘文件根据板厂需要可以输出Gerber格式,或ODB++格式。Gerber格式最初是由Gerber系统公司开发的,现由Ucamco公司所有,其前身Barco公司收购了Gerber系统公司。Ucamco不断的更新gerber规格说明书的版本。当下的Gerber规格说明书是I1版,是在2012年的12月发布的,可免费从ucamco公司的网站上下载。现在最新的Gerber格式为Gerber X2,可以插入板的层叠信息及属性。这个在Altium Designer中也是同步更新并支持的。
为何要转换为Gerber文件交PCB厂制板?
有很多工程师会直接将设计成果PCB文件发送给板厂加工,制造板厂会自己根据收到的PCB文件生成他们需要的光绘文件用于机器加工。而国际上比较流行的做法是将PCB文件转换为Gerber文件和钻孔数据后交PCB厂,为何要“多此一举”呢?
因为电子工程师对PCB的理解不一样,由PCB工厂转换出来的Gerber文件可能不是您所要的。比如您在设计时将元件的参数都定义在PCB文件中,您又不想让这些参数显示在PCB成品上。您直接把PCB文件发给板厂,板厂依葫芦画瓢将这些参数都留在了PCB成品上。这只是一个例子。若您自己将PCB文件转换成Gerber文件并加以配置就可避免此类事件发生。还有就是为了设计保密。保护自己的劳动成果不被窃取。公司的机密不被盗窃。正规的做法是将自己的PCB设计输出板厂所需的光绘文件及其他所需文件,打包发给板厂。
Altium Designer添加光绘文件的设置窗口如下所示。


注意,General栏目里的精度2:5是最高精度,需要和板厂确认他们的加工能力。Layers栏目里层数的选择一般是使用的层Used On选上。机械层板厂一般认机械1层作为板框信息层。Drill Drawing里面一般勾选Plot all used drill pairs。Apertures光圈勾选Embedded Apertures(RS274X)。Advanced维持默认即可。
Gerber文件输出之后,还需要输出NC drill钻孔文件。如果缺少这个钻孔文件,板厂是没办法钻孔的。

NC Drill钻孔文件的精度设置2:5,一定要和Gerber文件设置一致。最后将所有这些生成的文件放在一个文件夹里打包,即可发送给板厂加工。
Draftsman智能出图系统
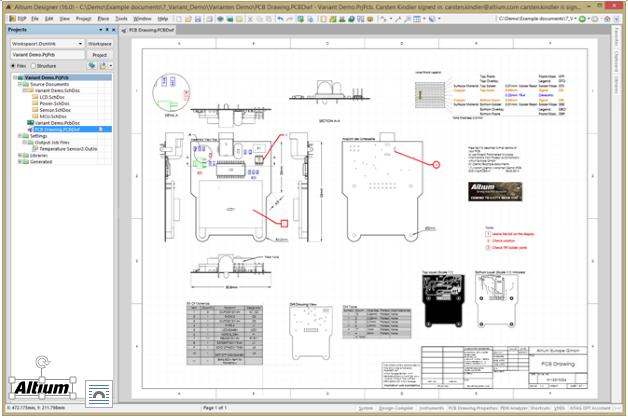
PCB板的制造和装配等生产图纸是输出图纸的重要项目,它们被用作在生产环节中指导工人们进行加工和检查。因此,在装配图纸中需要很多的信息,例如板子的尺寸标注、元器件标号、BOM以及板子不同方向的3D视图等。由于没有针对性的出图工具,设计师们绘制这些生产图纸时会遇到:
手工整理和添加各种信息,不仅繁琐而且容易出错;
很多有一定规模的公司需要图纸必须符合一定的标准;
当设计图纸发生稍许更改时,需要也同步更改这些生产图纸,甚至有时候需要重复所有的工作;
一旦生产图纸没有及时更改,会造成重大生产隐患。
这里有一个真实案例。某研究所电控工程师小李设计了一个电控核心主板,之后他将板型大小,板层厚度,某处信号的铜皮厚度等等一切设计意图都标注在机械第3层。标注信息非常充分,并且绘制了表格分类标注。因为他之前加工过很多次电路板,深知这些信息的沟通至关重要。当一个星期后,他收到加工好的电路板,惊骇地发现自己标注的一块需要漏铜处理的地方并没有开窗漏铜。这样他没法进行后续的测试工作。PCB板必须重做。经过了一系列沟通和单位内对上司的解释,让板厂重做。自己将这一块漏铜处理特别加了高亮提示。 然后又等了一个星期,板子回来了,这次又出了个其他问题!因为这次反正要改版,小李正好发现自己的安装孔有点小,就在设计中改大了,但是原来的标注信息忘记改了,所以制板厂这次严格按照他的注释要求钻孔,孔钻小了!该工程师郁闷之极,头痛的很。
什么是Draftsman?
Draftsman是Altium推出的一款功能强大的批量自动化出图工具。该系统是集成化的高效交互性方案,将设计制造和装配生产所需要的所有信息集中统一起来。Altium Draftsman已简化并标准化你的设计出图和记录过程,你无需将时间浪费到在此更新记录信息上面。

在Altium Draftsman中提供标准模板,并且自动提取PCB设计数据,更有强大的标注工具轻松地添加设计意图。只需要几秒钟即可添加尺寸,要求和注释等信息。其强大功能主要如下:
自动从PCB源文档提取图纸数据。
创建多页文档。
自动由自定义模板生成图纸。
使用常见和附加图纸视图(装配视图、制造视图、截面视图或钻孔视图)。
装配视图包含3D模型生成的图形(不需要占用特殊PCB层)。
可定制板层堆栈图例,可有选项添加板层详细信息。
材料清单(BOM)能够显示所有的电路板项目或仅显示所选装配图的项目。
添加标注,注明物料清单条目位置或来自备注列表的条目。
支持装配变量。
打印和导出,以PDF形式输出。
包含在OutJobs,且OutJobs中Draftsman PCB绘图文件能够添加作为新的文档输出。







结果:
Altium Draftsman的强大功能,将小李从水深火热中解脱出来。使用Altium Draftsman的批量自动化出图工具,将设计数据自动提取,提供模板进行信息录入。几秒钟就轻松搞定,省时省力准确无误不会出错。
欢迎分享,转载请注明来源:内存溢出
微信扫一扫
支付宝扫一扫
评论列表(0条)