
1 前言
随着国家对3G产业的不断推进,3G建设正在不断展开。3G基站存在RRU(射频远端设备)上塔的问题,雷击环境相对恶劣,这给系统防雷设计提出了严峻的考验。考虑3G的上塔线缆为光纤和电源线,而一般采用的是没有加强筋的光纤,不存在雷击的问题,所以电源的防雷在解决3G基站防雷中占有重要的地位。
因为电源防雷是属于系统工程,必须整体考虑。一般包括以下4个方面:交流动力电缆的防雷、基站地网与站内设备的地线连接、站内组合电源系统防雷,RRU电源线及电源端口防雷等。只有在这4个方面进行综合防护,才能达到理想的防雷效果。
本文从3G基站电源防雷的4个方面进行探讨,提供一个完整的3G移动基站电源防雷解决方案。
2 3G移动基站电源防雷方案
交流动力电缆的防雷
⑴ 进站的交流动力电缆的防护,对有条件的基站,变压器的高压侧电缆和低压侧电缆均应埋地安装。根据邮标《YD 5098-2005通信局(站)防雷与接地工程设计规范》(以下简称‘邮标’)要求“使用专用变压器时高压电力电缆的埋设长度不宜小于200M,低压电缆进机房时,其埋地长度不宜小于15m(当高压电力电缆已采取埋地敷设时,低压侧电缆一般不做此要求),低压埋地电缆,应采用有金属铠装层的电力电缆或穿钢管埋地引入机房,电缆金属铠装层应该在两端就近与变压器地网和机房地网连通”。但对于高压侧电缆,埋地安装投资及施工难度比较大,一般的基站都难以做到,根据以上同样标准要求,此时应沿架空线架设避雷线,并在变压器高压侧加装高压防雷器。
⑵ 在交流低压电力电缆进入机房的入口处安装B级防雷箱。特别注意B级防雷箱在安装时应采用“凯文”接线方式,以降低引线上的残压,充分发挥B级防雷箱的作用。对于交流低压电力电缆埋地进入的基站,由于交流低压电力电缆埋地后对雷击电流的衰减作用非常明显,B级防雷箱采用8/20μs波形的普通压敏电阻式防雷模块即可,但对于非埋地进入的低压电力电缆,其雷击电流可能会比较大,应推荐使用10/350μS波形的高通流容量的主动点火型间隙式防雷模块。
基站地网与站内设备的地线连接
基站地网应按照’邮标’的第七章《小型无线基站的防雷与接地》进行地网设计,接地电阻也应满足小于10Ω的标准。
良好的地网设计和较低的接地电阻,对基站的防雷起着重要的作用,但这是远远不足够的。一个防雷接地系统是否成功,更大成度上决定于站内设备间的地线连接(安装)关系。
⑴ 常见的不合理站内设备地线连接关系

图1 常见的不合理站内设备地线连接关系
这是一种最常见的机房内设备地线连接关系。其弊端非常明显:就是机房入口的B级防雷箱地线引线过长,无法发挥应有作用;另外开关电源的地线也过长,地线上的残压会叠加在后端设备的电源端口上。对与这种基站,无论地网设计如何优良,接地电阻小到何种程度,都无法起到良好的防雷作用。
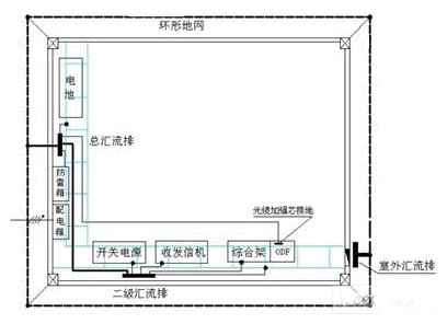
⑵ ‘邮标’推荐两种等电位地线连接方案:环形等电位连接和星形等电位连接。

图2 站内设备环形等电位地线连接方案
根据‘邮标’规定“采用环形等电位连接时,应在机房内沿走线架和墙壁设置环形接地汇集线,环形接地汇集线应多点就近与地网连通,站内设备由环形汇集线就近接地。”

图3 站内设备星形等电位地线连接方案
根据‘邮标’规定“采用星形等电位连接时,基站的总接地汇流排,应设在配电箱和第一级电源SPD附近,开关电源以及其他设备的接地排母线均由总接地汇流排引接。如设备机架与总汇流排相距较远时,可以采用两级汇流排”。
基站地网和站内设备的地线连接推荐采用‘邮标’规定的等电位地线连接方案,这样真正充分发挥各级防雷器的作用,实现良好防雷效果。
站内组合电源系统防雷
对于站内组合电源系统的防雷,其防雷电路比较简单,也比较成熟,根据‘邮标’,在组合电源系统交流侧采用通流容量为40kA(8/20μS波形)的 “3+1”方式的交流C级防雷器,在组合电源的直流侧采用通流容量为15kA(8/20μS波形)的“1+1”方式的直流防雷器即可。

图4 站内组合电源C级防雷器

图5 站内组合电源直流侧防雷器
RRU电源线及电源端口防雷
RRU电源线从塔底机房一直引到塔顶,空间跨度大,塔顶和塔底地网的电位差也很大,其防雷非常重要,难度也相对较大,应关注以下防雷要点:
⑴ 使用屏蔽电缆,而且屏蔽层两端要可靠接地,屏蔽层的上端接RRU的外壳(对RRU外置防雷箱的系统,接RRU外置防雷箱的外壳),屏蔽层的下端在馈线窗处接室外地排,而且不应引进室内,避免RRU电源线屏蔽层将铁塔雷击电流引入室内;
⑵ RRU电源端口的防雷电路应串入差模电感,以抑制雷击电流流向RRU后端电路。

图6 RRU电源线及电源端口防雷
注:① 如果组合电源内部没有配置合适的直流防雷器,则应该在RRU电源线引出机房处加装一级直流防雷箱;
因为RRU防雷器件的具体参数各个厂家不一,应根据具体使用场所选择。
结束语
一旦3G基站大规模推向农村及偏远山区,则将要经历非常严酷的雷击环境的考验。3G基站除了电源部分需做好上述的各项措施之外,还应全面考虑天馈线的防雷,RRU内部电路的防雷设计、GPS的防雷等各个方面,才能保证3G基站的稳定可靠运行。
欢迎分享,转载请注明来源:内存溢出
微信扫一扫
支付宝扫一扫
评论列表(0条)